הבסיס הצבאי הוותיק ברמת גן בדרך להפוך לפנינה נדל"נית וירוקה: תוכנית ר"ג/1163/א להתחדשות מתחם השלישות, הממוקם על התפר שבין רמת גן לגבעתיים, מסתמנת כאחת המשמעותיות ביותר שמקודמות כיום בגוש דן. מ"מ וסגן ראש עיריית רמת גן, רועי ברזילי, חושף את פרטי התוכנית שתשנה את פני האזור ותהפוך אותו ל"ריאה הירוקה" החדשה של התושבים.
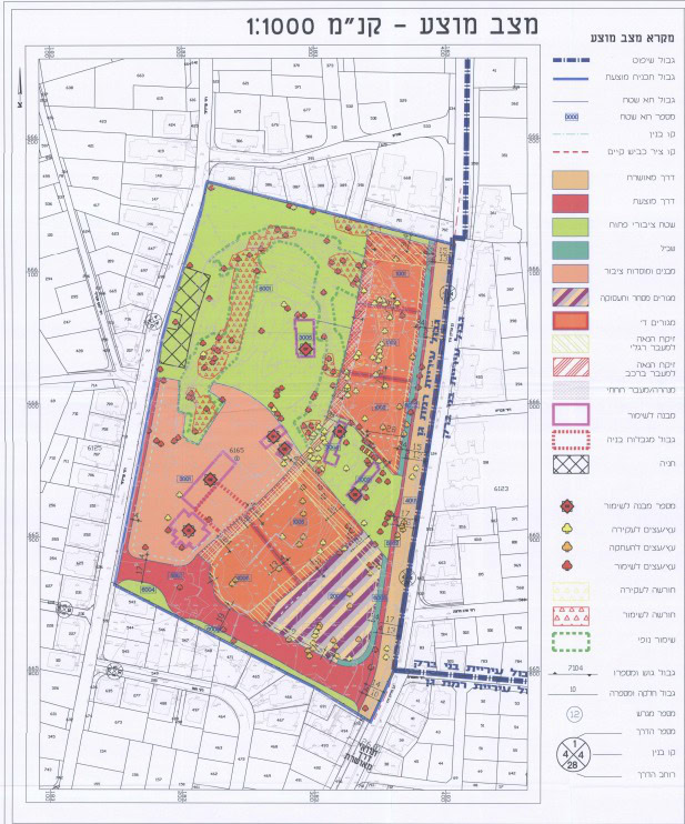
על פי התוכנית, המשתרעת על שטח עצום של כ-70 דונם, יוקם מתחם מעורב שימושים הכולל מגורים, מבני ציבור ושטחים ירוקים נרחבים. "זהו שטח שעתיד לשמש כסוג של 'סנטרל פארק' עירוני עבור רמת גן והאזור כולו", מסביר ברזילי. הבשורה המשמעותית ביותר לציבור היא הקצאת כ-25 דונם לשטח ציבורי פתוח, לצד כ-12 דונם נוספים למבני ציבור.
במסגרת התפיסה הסביבתית, התוכנית שמה דגש על שימור הקיים: חורשות העצים הוותיקות במתחם יישמרו, וכך גם מבנים היסטוריים המיועדים לשימור שישופצו כחלק מהפיתוח.
לצד הירוק, התוכנית כוללת בנייה לגובה של מגדלי מגורים ותעסוקה עד 47 קומות, וכן כ-5 דונם למסחר ותעסוקה. ברזילי מתייחס לאפשרות שיזמים יבקשו להגדיל את הזכויות בעתיד ומבהיר: "אני לא מוצא מקום להגדיל את זכויות הבנייה למגורים, התמהיל הנוכחי מאוזן וטוב. אם תהיה הגדלה, היא צריכה להיות מתונה ורק לטובת תעסוקה ומבני ציבור".


בתחילת חודש ינואר הוכרזו ההצעות הזוכות במכרז רשות מקרקעי ישראל: הצעות הוגשו למכרז רמ"י ברמת גן בו שווקה בהצלחה קרקע לבניית 1,200 יח"ד ב-2 מתחמים בבנייה רוויה במחנה גנים, רמת גן. על הקרקע ישולם לרשות כ-961.3 מיליון ₪ (לא כולל מע"מ והוצאות פיתוח).
להלן תוצאות המכרז:

המתחמים ששווקו במכרז הינם חלק מתוכנית מחנה גנים ברמת גן המתפרשת על כ-70 דונם בין הרחובות בן גוריון, מגדים, קריניצי והגת.
ומה לגבי הפקקים? התוכנית כוללת שדרוג של מערך התחבורה, הרחבת רחובות בן גוריון וקריניצי, ופתיחת מעברים חדשים שישפרו את הקישוריות בין הרחובות ויקלו על התנועה באזור.
אנו מכבדים זכויות יוצרים ועושים מאמץ לאתר את בעלי הזכויות בצילומים המגיעים לידינו .אם זיהיתם בפרסומנו צילום אשר יש לכם זכויות בו , אתם רשאים לפנות אלינו ולבקש לחדול מהשימוש באמצעות המייל info@rgg-news.co.il
